Seyf Dental

Dr Patricia Seyf commissioned NVDC Architects after learning about our work through searching on Google. Dr Seyf liked our work and after an initial consultation, she appointed NVDC to provide a full service, taking her project from concept to completion.

Location
Station Road, Barnes, London
Client
Dr Patricia Seyf
Project Type
Dental Practice
Project Status
Completed in 2014
Contract Value
£125,000
Size
85m2

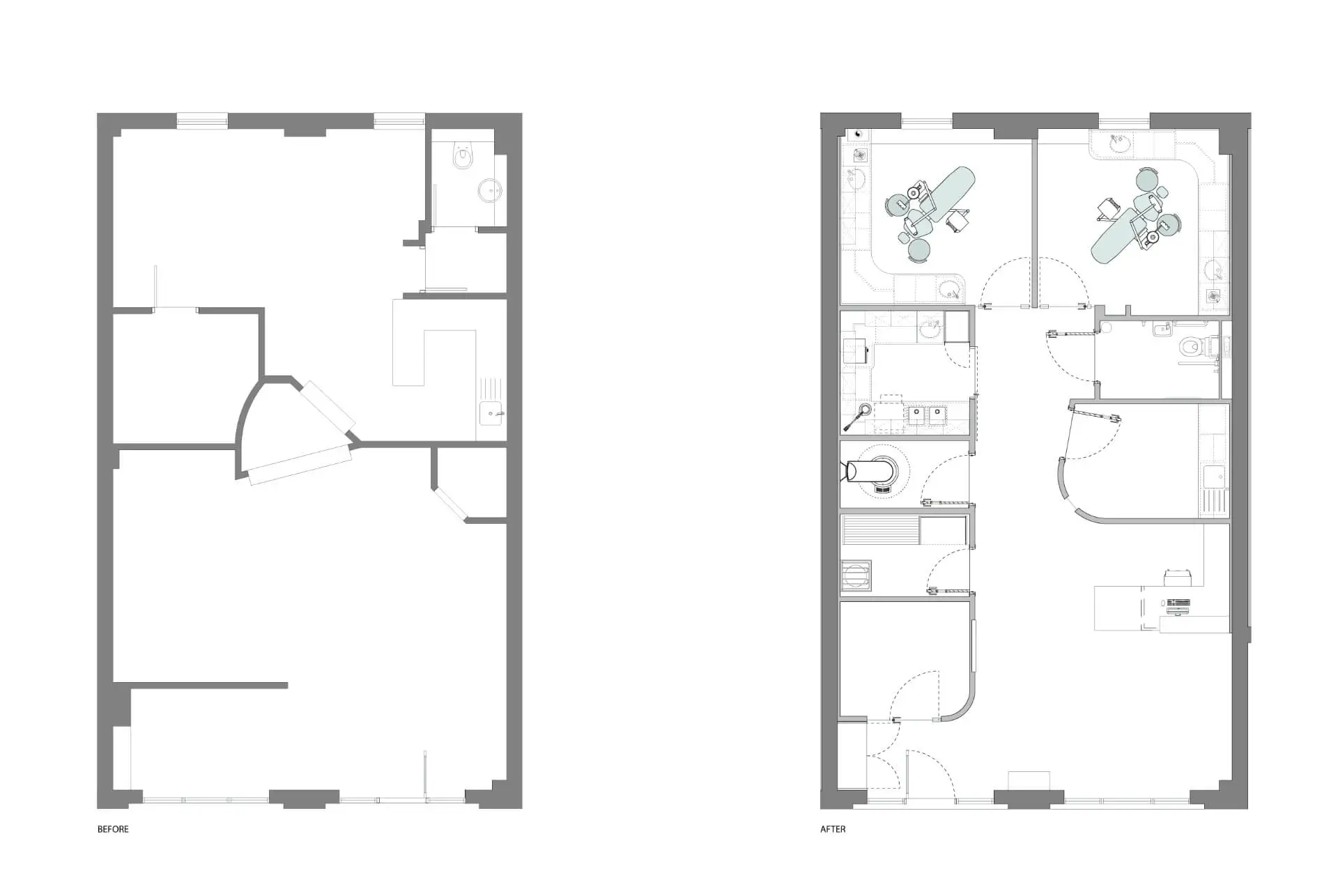
Dr Seyf’s ambition from the start was to create a high-quality and modern dental practice to reflect her exacting standards and the high-quality dental care that she delivers on a daily basis through her work.

The project involved the change of use and conversion of a small kitchen showroom to create a 2-surgery dental practice with an OPG room, decontamination room, staff room, disabled toilet, storage, reception, and waiting area.

The small footprint of the existing unit within an existing mixed-use development required clever and efficient use of the available floor space to create a fully compliant practice while the large/full height plate glass doors allow daylight to flow and flood the entire practice from openings on front and rear of the unit helping to enhance the sense of space.

The idea behind the exposed existing brick wall in the reception area was to introduce a degree of warmth and tactile quality to the practice while reflecting the warm and friendly nature of dental care that the patients could expect to receive at Seyf Dental.

NVDC Architects

Browse our website offline by installing our web app for free!

This website uses cookies to ensure you get the best experience on our website. Privacy Policy