Arthurstone House

The design involves the internal and external alterations of a B-listed 1860s extension to the three-storey mansion at Arthurstone House.

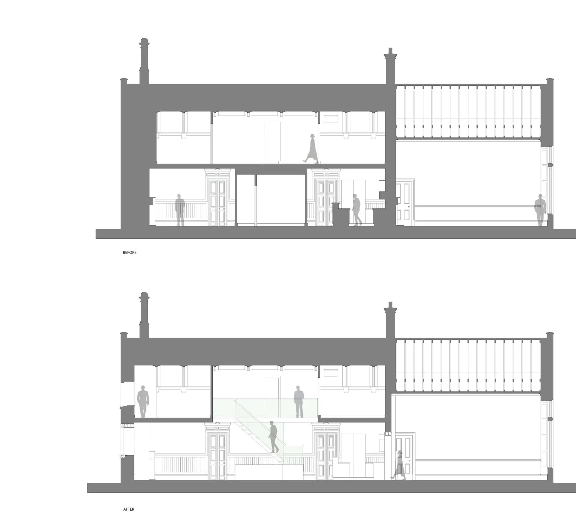
The client brief was to reimagine the layout of this 2-bedroom conversion to enhance the flow and their enjoyment of the proportions and detailing of this wonderful Listed property.

Location
Arthurstone, Perthshire
Client
Private Client
Project Type
Residential Home Design
Project Status
Completed in 2011
Size
180m2

Following an in-depth consultation period with the planners and client, revised proposals were submitted for listed building consent in 2010. The adaptations involved the removal of the WC & Utility Module in the middle of the main reception space and redesigning this space as a single open-plan living space with the introduction of a new lightweight staircase.

These revised proposals reinstate the grandeur of the original reception space while creating a new bedroom on the upper floor level overlooking the grand reception room.

NVDC Architects

Browse our website offline by installing our web app for free!

This website uses cookies to ensure you get the best experience on our website. Privacy Policy